Po przejęciu pojawiały się różne pomysły na wykorzystanie nieruchomości, by ostatecznie zdecydować o usytuowaniu w nim siedziby Biblioteki Publicznej.
W tym roku zarezerwowano w budżecie miasta kwotę 500 tys. złotych mającą umożliwić rozpoczęcie prac adaptacyjnych w budynku.
Inwestycja będzie realizowana w cyklu dwuletnim. Jej ogólny koszt szacuje się na 1,5 miliona złotych.
Dzięki uprzejmości wiceprezydenta Grzegorza Haraśnego możemy już dzisiaj zaprezentować Wam koncepcję zagospodarowania nieruchomości wraz z komputerową wizualizacją zawierającą również koncepcję zagospodarowania terenu.
- Z inwestycją powinniśmy ruszyć w połowie roku. – mówi zastępca naczelnika Wydziału Inwestycji Urzędu Miasta Bartłomiej Matysiak. – Czekamy tylko na przejęcie części terenu na zapleczu budynku od obecnego właściciela.
Potwierdza to wiceprezydent Haraśny – Dzisiaj już właściwie mogę powiedzieć, że zawarliśmy porozumienie z właścicielem sąsiedniej nieruchomości.
Budynek byłego Sądu został wybudowany około 1830 roku po nadaniu miastu praw miejskich. Obecnie jest objęty ochroną konserwatorską. W 1896 roku dobudowano parterową oficynę która w latach 70-tych została nadbudowana o jedną kondygnację.
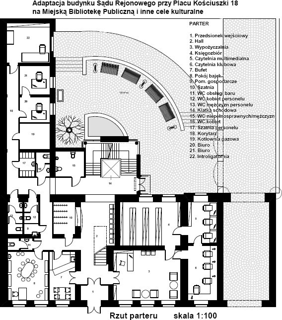
Na parterze budynku znajdzie się biblioteka dla młodzieży z czytelnią i zapleczem biurowo – socjalnym.
Na piętrze znajdą się: kameralna sala koncertowo - odczytowa, galeria wystawowa oraz pomieszczenia biurowe i socjalno – sanitarne.
Po analizie istniejącego układu funkcjonalnego, zaprojektowano wyburzenie ryzalitu z klatką schodową na tylnej elewacji. W tym miejscu zaprojektowano nową przybudówkę w której znajdować się będzie klatka schodowa z szybem windowym przystosowanym dla niepełnosprawnych.
Zakres opracowania zawiera adaptację istniejących pomieszczeń piwnicznych. Konserwator Zabytków zalecił aby piwnicę udostępnić dla publiczności. Może zostać ona wykorzystana do wystawiania eksponatów przestrzennych np. rzeźby. Istniejąca piwnica o ścianach z kamienia wapiennego i sklepieniach o wysokiej strzałce ma charakter pieczary co stwarza niepowtarzalny klimat.
Przy opracowaniu projektu rozbudowy uwzględniono wymagania związane z przystosowaniem budynku do przebywania osób niepełnosprawnych.
Komunikację pionową umożliwi dźwig o gabarytach umożliwiających swobodny wjazd i wyjazd wózka inwalidzkiego.
Od strony placu Kościuszki zmiany będą niewielkie. Dotyczą przede wszystkim odnowienia elewacji oraz wymiany stolarki okiennej i obróbek blacharskich.
Po wielu latach zostanie nareszcie otworzona ulica Przeskok.
- Chcemy przywrócić dawny klimat miasta – mówi wiceprezydent. – Ożywić tereny wzdłuż rzeki Wolbórki, jako miejsce spacerów, rekreacji i wypoczynku. Jest to część większej koncepcji związanej również z Programem Rewitalizacji Miasta. Adaptacja byłego Sądu to dopiero pierwszy mały krok w tym kierunku. – dodaje.
Reklama
Pierwszy mały krok
Kilka lat temu Miasto przejęło od Skarbu Państwa budynek przy Placu Kościuszki 18. Stało się to możliwe po przeniesieniu tomaszowskiego Sądu Rejonowego do nowej siedziby przy ulicy Mościckiego
- Mariusz Strzępek
- 13.02.2008 21:47 (aktualizacja 16.10.2025 17:41)
Data dodania:
13.02.2008 21:47
To również może cię zainteresować
Opinie
Reklama
Fałszywe nagie zdjęcia dziecka i AI. UODO: przepisy są, problemem jest ich niestosowanie (wywiad)
Sprawa deepfake’ów z udziałem dziecka z Mazowsza ujawniła problemy ze stosowaniem prawa wobec nowych technologii. Prezes UODO Mirosław Wróblewski wskazuje, że obowiązujące przepisy pozwalały na ściganie sprawców, lecz nie zostały użyte.Data dodania artykułu: 27.01.2026 09:59
Dziś w kraju i na świecie (wtorek, 27 stycznia)
Dziś jest wtorek, dwudziesty siódmy dzień roku. Wschód słońca o godz. 7.26, zachód o 16.11. Imieniny obchodzą m.in. Chryzostom, Dacjusz, Elwira, Henryk, Jan, Jerzy, Julian, Karolina, Leander, Leandra, Przemysław, Rozalia.Data dodania artykułu: 27.01.2026 00:00
Sondaż IBRiS dla Onetu: Nawrocki numerem jeden; rośnie zaufanie do Tuska i Sikorskiego
Prezydent Karol Nawrocki pomimo lekkiego spadku utrzymuje pozycję lidera sondażu zaufania przeprowadzonego dla Onetu przez IBRiS. Na podium znaleźli się też szef polskiej dyplomacji Radosław Sikorski oraz premier Donald Tusk; obaj zaliczyli wzrosty o odpowiednio 3 i 4,4 pkt proc.Data dodania artykułu: 26.01.2026 21:24
Dziś w kraju i na świecie (poniedziałek, 26 stycznia)
26 stycznia w Warszawie prezydent Karol Nawrocki spotka się z ministrem Radosławem Sikorskim, by rozstrzygnąć spór o nominacje ambasadorskie i omówić ewentualne przystąpienie Polski do Rady Pokoju. Tego samego dnia Pałac przyjmie prezydent Mołdawii Maię Sandu, MSZ gościć będzie saudyjskiego ministra, a PKOl ogłosi skład na igrzyska w Mediolanie.Data dodania artykułu: 26.01.2026 00:00
34. Finał WOŚP/ W niedzielę zbiórka na diagnostykę i leczenie chorób przewodu pokarmowego
W niedzielę Wielka Orkiestra Świątecznej Pomocy będzie kwestować na rzecz diagnostyki i leczenia chorób przewodu pokarmowego u dzieci. Na ulicach w całej Polsce tysiące wolontariuszy będzie zbierać pieniądze do puszek, odbędzie się też szereg imprez i internetowych aukcji.Data dodania artykułu: 25.01.2026 09:10Liczba komentarzy artykułu: 1
50 lat temu The Beatles odrzucili miliony dolarów za powrót na scenę
30 mln dolarów - taką kwotę w styczniu 1976 r. proponował muzykom The Beatles promotor koncertowy Bill Sargent za powrót na scenę na jeden jedyny koncert. Fantastyczna Czwórka z Liverpoolu, jeden z najsłynniejszych zespołów w historii, odrzuciła lukratywną ofertę.Data dodania artykułu: 25.01.2026 09:05
Dziś w kraju i na świecie (niedziela, 25 stycznia)
Dziś jest niedziela, dwudziesty piąty dzień roku. Wschód słońca o godz. 7.28, zachód o 16.07. Imieniny obchodzą: Ananiasz, Apollon, Artemia, Emanuel, Emanuela, Juwentyn, Maksym, Miłobor, Miłosz i Paweł.Data dodania artykułu: 25.01.2026 00:00
105 lat temu urodził się harcmistrz, ppor. AK Tadeusz Zawadzki „Zośka”
24 stycznia 1921 r., urodził się harcmistrz, ppor. AK Tadeusz Zawadzki „Zośka”, bohater „Kamieni na szaniec”, „Kotwicki” - zasłużony dla utrwalenia w przestrzeni okupowanej Warszawy symbolu Polski Walczącej; inicjator i uczestnik Akcji pod Arsenałem; patron powstańczego batalionu.Data dodania artykułu: 24.01.2026 11:57
Reklama
Polecane












Reklama
Reklama
Temperatura: -1°C Miasto: Tomaszów Mazowiecki
Ciśnienie: 1002 hPa
Wiatr: 5 km/h
Reklama

Tomaszowskie Centrum Zdrowia pod lupą: milionowe straty, SOR i kontrowersje wokół inwestycji
Wystarczyło kilka godzin, by wyszły na jaw pierwsze historie, które wskazują na to, że medaliki pod krzesłami radnych to drobiazg w porównaniu z tym, co dopiero może się okazać. Kiedy ludzie przestają się bać, zaczynają mówić. Tylko właściwie od czego zacząć?
Powiat wzięty na zakładnika. Polityka destrukcji w wykonaniu radnych od Witczaka i Węgrzynowskiego
W Tomaszowskim powiecie radni związani z Witczakiem i Węgrzynowskim miesiącami blokowali obrady, zgłosili przerwę do 2 marca i usiłowali doprowadzić do komisarycznego paraliżu. Dziś 12 radnych powołało zarząd i przyjęło budżet — mieszkańcy niech zapamiętają, kto sabotował, a kto pracował.
„Cudowne” medaliki pod krzesłami radnych. Kto je przykleił i po co?
Pod krzesłami radnych w sali obrad Rady Powiatu Tomaszowskiego ktoś przykleił tajemnicze „cudowne” medaliki. Sprawa szybko zaczęła żyć własnym życiem – pojawiły się oskarżenia, sugestie i polityczne przepychanki, choć wciąż nie wiadomo, kto je tam umieścił i po co. Jedno jest pewne: w urzędzie, który ma działać na podstawie procedur i faktów, nagle pojawił się element przypominający rytuał – i to taki, który po „usunięciu” wrócił jak bumerang.
Społeczny asystent posła: „pomoc w terenie” wykonywana przez nastolatków?
W polskim parlamencie funkcjonuje instytucja, o której większość wyborców słyszy dopiero wtedy, gdy wybucha spór, lub afera obyczajowa. Społeczni współpracownicy posłów i senatorów – potocznie nazywani asystentami społecznymi – nie są tylko „ludźmi do plakatów”. Ustawa wprost wskazuje, że działalność parlamentarzysty może być wspierana przez społecznych współpracowników, obok etatowych pracowników biur.
Marcin Witko poza PiS? Narasta spór o polityczne konsekwencje powiatowego przesilenia
Tomaszów Mazowiecki, 23 stycznia 2026 r. – W lokalnej polityce znów wrze po doniesieniach, że prezydent miasta Marcin Witko nie jest już członkiem Prawa i Sprawiedliwości. Informację podała na ostatniej sesji radna Martyna Wojciechowska, co podobno potwierdził poseł Antoni Macierewicz. Poseł znany jest jednak z tego, że mówi różne rzeczy, a większość z nich oparta jest na manipulacjach lub domniemaniach.
Zmiana warty w TCZ. Nowy Zarząd Powiatu zaczyna od szpitala i „porządków na górze”
W powiecie tomaszowskim ruszyła seria ruchów, które mogą realnie przełożyć się na to, jak działa najważniejsza powiatowa spółka – Tomaszowskie Centrum Zdrowia. Po miesiącach politycznych turbulencji w samorządzie przyszedł moment, w którym nowa władza testuje na sobie najtrudniejszy odcinek: szpital. I zaczyna – klasycznie – od góry.
Policjanci uratowali 32-latka przed wychłodzeniem. Nocna interwencja przy ul. Koplina
Niskie temperatury i zimowa aura utrzymują się od dłuższego czasu, a służby apelują, by nie pozostawać obojętnym na osoby, które mogą być narażone na wychłodzenie. W Tomaszowie Mazowieckim kolejny raz potwierdziło się, że czujność świadków i szybka reakcja funkcjonariuszy mogą zapobiec tragedii.
Strażackie Spotkanie Noworoczne w Kolonii Zawada
24 stycznia w Kolonii Zawada druhny i druhowie OSP oraz strażacy PSP z powiatu tomaszowskiego spotkali się na Noworocznym Spotkaniu, by podsumować 2025 (1162 interwencje) i podziękować za służbę. Rozmowy o gotowości i dotacji 947 tys. zł przypomniały, że bezpieczeństwo wymaga ciągłego wzmacniania.Reklama
Wasze komentarze
Autor komentarza: CzłowiekTreść komentarza: CIEMNOGRÓD. Tu nigdy nie będzie normalnie.Źródło komentarza: „Cudowne” medaliki pod krzesłami radnych. Kto je przykleił i po co?Autor komentarza: DepilatorTreść komentarza: No to teraz w radzie miasta 13:10 dla Po/PisŹródło komentarza: Marcin Witko poza PiS? Narasta spór o polityczne konsekwencje powiatowego przesileniaAutor komentarza: 67 67Treść komentarza: Koleją honorowa akcja jeszcze nie tak dawno w kwestii dyrektora wykiwał pan jednego,a teraz z tym jednym i jego ekipa dile robisz:)polityka lokalna to bagnoŹródło komentarza: Sławomir Żegota wyjaśnia: ustąpiłem dla dobra powiatu, poparłem Dariusza KowalczykaAutor komentarza: TMTreść komentarza: Konfederacja to mocny odchyl w prawo a Witko to w tej chwili mocno w lewo że więc odpada:)Źródło komentarza: Marcin Witko poza PiS? Narasta spór o polityczne konsekwencje powiatowego przesileniaAutor komentarza: ZgredTreść komentarza: Ja bym karał za błyskawice!Źródło komentarza: „Cudowne” medaliki pod krzesłami radnych. Kto je przykleił i po co?Autor komentarza: Zawada CityTreść komentarza: Co niektórzy z pierwszego rzedu wstydu nie maja!Ich koledzy chcą wsadzać do wiezien ludzi ,którzy dbali o strażaków i dawali im wozy i sprzęt dla poprawienie bezpieczeństwa!ich samych i ludzi!Źródło komentarza: Strażackie Spotkanie Noworoczne w Kolonii Zawada
Reklama
Reklama
Napisz do nas
Reklama
Reklama
Reklama
Reklama
















































Napisz komentarz
Komentarze